Plan and execute your project at your own pace.
Our homes are designed for airtight for the ultimate in energy efficiency, comfort and good health.
Our drawings and details have been optimised in collaboration with builders on actual projects for economy, minimal waste and ease of construction.
Start by purchasing a planning package before before placing an order for full construction drawings.
Smooth and nature inspired, Kaya is a minimalist one bed plan is designed for backyards with a wider rear boundary. The spacious design with raked ceilings provides a flexible space for living, working, creating or renting for extra income.
Hasi embodies a small, nurturing environment where big ideas can grow peacefully. The size of a one bed apartment, this plan provides a long term accommodation solution. Hasi creates a flexible space for living, working, creating or renting for extra income.
Modern and comfy with an internal floor area of 70sqm, Tilo is designed for locations where Ancillary Dwellings are deemed to comply. The two generous bedroom design with raked ceilings provides a flexible space for living, working, creating or renting for extra income.
Tiny and cozy, Mausi is a friendly comforting space with charm and personality. Perfect for a special short stay, offering a full bathroom, kitchenette, wide patio doors, and lounge space.
Bright and cozy, Luma is designed for affordability and functionality.
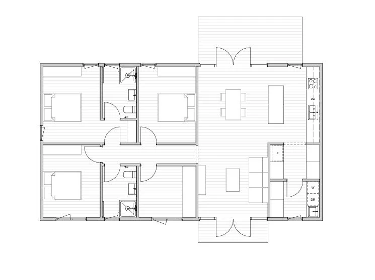
This home is ideal for sites with a northern orientation of the rear yard. The three generous bedroom plus study design with raked ceilings provides a flexible space for a family with room to work.
Cute and cosy, this Nuki designed to fit in the smallest back yards. The compact design with raked ceilings provides a flexible space for living, working, creating or renting for extra income.
This is an efficient and affordable family home with a dual north and south aspect living space.
Designed for blocks where the rear of the lot faces south, or there is a desirable aspect south.
Bright and cozy, Luma is designed for affordability and functionality.
This home is ideal for sites with a northern orientation and north access. The three generous bedroom with raked ceilings provides a flexible space for a family.

Simple, elegant and fresh, Mika is designed for locations where 70sqm Ancillary Dwellings are deemed to comply. The two generous bedroom design with raked ceilings provides a flexible space for living, working, creating or renting for extra income.